Sabrina Dietrich Immobilien

Anspr. Sabrina Dietrich
02243 - 7073

Markt 4
53783 Eitorf

www.immo-dietrich.de

Drucken

Traumhaftes Einfamilienhaus mit Einliegerwohnung, gepflegtem Garten & Carport

Dieses gepflegte Einfamilienhaus mit Einliegerwohnung aus dem Baujahr 2001 überzeugt durch seine großzügige Raumaufteilung, helle Wohnatmosphäre und attraktive Lage in Hanglage mit schönem Weitblick. Hauptwohnbereich (ca. 133 m² Wohnfläche) Das Haupthaus erstreckt [...]

Garten

Garten

Objekt-Nr: 66275-8456

Preise

529.000,00 EUR

Courtage

3,57

Flächen

198 m²

19,77 m²

560 m²

Ausstattung

2

2

4

1

1

6

Gehoben

2001

Öl

Ja

2001

116.39

Bedarf

2035-10-06

2014

OEL

D

Ja

Ja

nach Vereinbarung

offen

gepflegt

Lagebeschreibung

Die angebotene Doppelhaushälfte befindet sich in einer attraktiven und ruhigen Wohngegend von Much, einer charmanten Kleinstadt im malerischen Rhein-Sieg-Kreis. Diese begehrte Lage besticht durch ihre idyllische Umgebung, die von sanften Hügeln und grünen Wiesen geprägt ist, und bietet gleichzeitig eine ausgezeichnete Anbindung an das städtische Leben.

Die Gemeinde Much ist bekannt für ihre naturnahe und familienfreundliche Atmosphäre und bietet eine hohe Lebensqualität. In unmittelbarer Nähe finden sich vielfältige Einkaufsmöglichkeiten, Schulen und Kindergärten, die den Alltag angenehm gestalten. Darüber hinaus laden zahlreiche Wander- und Radwege in der Umgebung zu erholsamen Freizeitaktivitäten im Freien ein.

Dank der günstigen Verkehrsanbindung sind die benachbarten Städte Bonn und Köln bequem zu erreichen, was die Lage auch für Berufspendler besonders attraktiv macht. Die Verbindung zur Autobahn und dem öffentlichen Nahverkehr sorgt für eine gute Erreichbarkeit der umliegenden Regionen.

Insgesamt bietet diese Lage eine harmonische Kombination aus Ruhe, Naturverbundenheit und praktischer Erreichbarkeit, die das Wohnen in dieser Gemeinde besonders lebenswert macht.

Objektbeschreibung

Dieses gepflegte Einfamilienhaus mit Einliegerwohnung aus dem Baujahr 2001 überzeugt durch seine großzügige Raumaufteilung, helle Wohnatmosphäre und attraktive Lage in Hanglage mit schönem Weitblick.

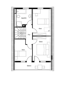
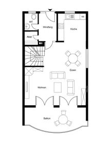
Hauptwohnbereich (ca. 133 m² Wohnfläche)
Das Haupthaus erstreckt sich über zwei Etagen und bietet ein modernes, offenes Wohnkonzept. Im Erdgeschoss befindet sich eine offene Küche mit angrenzendem Wohn- und Essbereich, der durch große Fensterflächen lichtdurchflutet ist. Ein Gäste-WC sowie ein praktischer Abstellraum ergänzen das Raumangebot. Vom Wohnbereich gelangt man direkt auf den Balkon, der einen herrlichen Blick ins Grüne bietet.

Im Dachgeschoss befinden sich drei gut geschnittene Schlafzimmer sowie ein helles Badezimmer. Zusätzlich steht ein Kellerraum zur Verfügung, der als Lagerfläche genutzt werden kann.

Einliegerwohnung (ca. 65 m² Wohnfläche)
Die separat zugängliche Einliegerwohnung im Souterrain profitiert dank der Hanglage von bodentiefen Fenstern und einem direkten Zugang zur eigenen Terrasse. Sie verfügt über ein Schlafzimmer mit angrenzendem Ankleidezimmer, ein Badezimmer sowie einen offenen Wohnbereich mit integrierter Küche – ideal für Gäste, Familienmitglieder oder zur Vermietung.



Außenbereich und Ausstattung
Jede Etage bietet einen Austritt ins Freie – sei es auf einen Balkon mit Fernblick oder eine Terrasse mit Gartenanschluss. Der große, gepflegte Garten lädt zum Verweilen und Entspannen ein und verfügt außerdem über ein Gartenhaus mit Stromanschluss.

Ein Carport mit zwei Stellplätzen rundet das Angebot ab.

Dieses Haus bietet vielseitige Nutzungsmöglichkeiten und ein behagliches Zuhause in ruhiger Lage. Ideal für Familien, Mehrgenerationenwohnen oder als Kombination aus Wohnen und Vermieten.

Ausstattung

- Gesamtwohnfläche: ca. 198 m² (Haupthaus ca. 133 m², Einliegerwohnung ca. 65 m²)

- Baujahr: 2001

- Sehr gepflegter Zustand

- Offene Küche

- Großzügiger und heller Wohn-/Essbereich

- Balkon und Terrasse mit Weitblick

- Separater Eingang zur Einliegerwohnung

- Großer Garten

- Carport mit zwei Stellplätzen

Bilder

Diele

Diele

Essbereich

Essbereich

Küche

Küche

Wohnzimmer

Wohnzimmer

Balkon EG

Balkon EG

Arbeitszimmer

Arbeitszimmer

Badezimmer

Badezimmer

Badezimmer

Badezimmer

Schlafzimmer

Schlafzimmer

Ankleidezimmer

Ankleidezimmer

Balkon 1.OG

Balkon 1.OG

Einliegerwohnung

Einliegerwohnung

Außenansicht

Außenansicht

Garten

Garten

EG

EG

DG

DG

UG

UG