Sabrina Dietrich Immobilien

Anspr. Sabrina Dietrich
02243 - 7073

Markt 4
53783 Eitorf

www.immo-dietrich.de

Drucken

Ca. 66 m² große Eigentumswhg. mit Loggia und Tiefgaragenstellplatz in Hagen-Helfe!

Suchen Sie eine barrierearme Zweizimmerwohnung in Hagen-Helfe? Dann ist diese Immobilie genau das Richtige für Sie. Die Wohnung befindet sich in einem gepflegten Hochhaus, das über einen Aufzug und einen Tiefgaragenstellplatz [...]

Hausansicht

Hausansicht

Objekt-Nr: 172732-6610

Preise

129.000,00 EUR

342,00 EUR

Courtage

3.57 %

Flächen

66 m²

Ausstattung

Ja

1

16

1

1

96

2

Standard

Dusche

1978

Gas

Fliesen, Laminat

2020-01-08

1978

Verbrauch

07.01.2030

2014

Gas

92

C

14

Fernwärmeheizung

Einbauküche

Ja

1

Tiefgarage

Ja

sofort

gepflegt

Lagebeschreibung

Hagen-Helfe ist ein gefragter Stadtteil in Hagen, der durch seine hervorragende infrastrukturelle Anbindung überzeugt. Die schnelle Erreichbarkeit der Autobahnen A1 und A45 ermöglicht unkomplizierte Verbindungen in die umliegenden Städte. Der Stadtteil an sich verfügt über ein kleines, fußläufig erreichbares Zentrum, das eine Auswahl an Restaurants bietet. Kitas, Grundschulen sowie eine Gesamtschule sind bequem zu Fuß erreichbar. Auch die Anbindung an den öffentlichen Nahverkehr ist sehr gut und fußläufig erreichbar.

Objektbeschreibung

Suchen Sie eine barrierearme Zweizimmerwohnung in Hagen-Helfe? Dann ist diese Immobilie genau das Richtige für Sie.
Die Wohnung befindet sich in einem gepflegten Hochhaus, das über einen Aufzug und einen Tiefgaragenstellplatz verfügt.

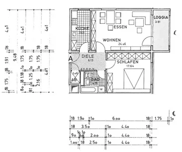
Zwei Aufzüge ermöglichen Ihnen einen stufenlosen Zugang zur Wohnung im 14. Obergeschoss. In der Wohnung angekommen sind alle Zimmer über die Diele, die über einen praktischen Abstellraum verfügt, zugänglich.
Direkt links befindet sich die Küche, ausgestattet mit einer modernen Einbauküche, die im Kaufpreis enthalten ist.
An die Küche angrenzend liegt das Wohn-/ und Esszimmer mit einer Fläche von ca. 24 m². Vom Wohn-Esszimmer aus haben Sie einen Zugang auf die ca. 9 m² großen Loggia. Dank der Lage im 14. Obergeschoss genießen Sie einen beeindruckenden Weitblick über den Westen von Hagen und können aufgrund der Ausrichtung auch die Sonne bis in die Abendstunden genießen.
Auch das Schlafzimmer bietet mit ca. 18 m² ausreichend Platz. Das innenliegende Badezimmer mit großer Dusche wurde vor wenigen Jahren erneuert. Zudem können Sie hier eine Waschmaschine und einen Trockner anschließen.

Ein Kellerraum, ein Fahrradkeller sowie ein Tiefgaragenstellplatz runden dieses attraktive Angebot ab.

Diese Immobilie eignet sich sowohl für Jung und Alt zur Selbstnutzung als auch für Kapitalanleger. Die Lage in Hagen- Helfe ist bei Eigennutzern und Mietern gleichermaßen stets sehr begehrt.

Ausstattung

Dachform: Flachdach (erneuert ca. 2014)
Fassade: Gedämmte Vorhangfassade, erneuert ca. vor 6 Jahren
Hauseingangstür: Barrierefreie Schwenktüren, öffnen sich über Bewegungsmelder
Etagenlage: 14. Etage
Aufzug: Ja, zwei
Fenster: Kunststofffenster, Balkontür bereits erneuert
Rollläden: Nein
Wohnungstür: Holz
Gegensprechanlage: Ja
Zimmertüren: Holz, tlw. mit Glaseinsatz
Zargen: Stahl, weiß
Bodenbeläge: Wohnräume Laminat, Küche PVC, Badezimmer modern gefliest
Badezimmer: Modernisiertes Duschbad
Gäste- WC: Nein
Loggia/ Balkon: Loggia mit Westausrichtung und Weitblick, ca. 9m² Grundfläche
Heizungsart: Fernwärme
Wasseruhr: Eigene Wasseruhr im Bad
Waschraum: Nein, Anschluss für Waschmaschine und Trockner im Badezimmer
Trockenraum: Ja
Garage/ Stellplatz: Tiefgargenstellplatz im Kaufpreis enthalten
Hausgeld: 342 EUR/ Monat darin enthalten sind die Kosten für Heizung, Wasser, Abwasser, Winterdienst, Niederschlagswasser, Aufzug, städt. Straßenreinigung und Winterdienst, Müllabfuhr, Garten-/ Außenanlagenpflege, Hausreinigung, objektbezogener Winterdienst, Hausmeister, Allgemeinstrom, Versicherungen, Reparaturen, Wartung Kontoführung, Verwaltung und Rücklage,
Grundsteuer: 346 EUR / Jahr
Sonstiges: Die vorhandene Einbauküche ist ebenfalls im Kaufpreis enthalten. Im Bereich der Wohnungsdiele gibt es einen praktischen Abstellraum.

Sonstiges

Der Energieausweis wird den Interessenten bei der Besichtigung vorgelegt und in Kopie übergeben.
Energieausweis: Verbrauchsausweis
gültig von: 08.01.2020
Energieträger/ Befeuerung: Gas (Fernwärme)
Endenergieverbrauch Wärme: 92 kWh/(m²a)
Energieeffizienzklasse: C
Baujahr: 1978

Bilder

Herrlicher Ausblick v

Herrlicher Ausblick v

Gepflegter Hauszugang

Gepflegter Hauszugang

Wohnungsdiele

Wohnungsdiele

Wohnungsdiele

Wohnungsdiele

Der praktische Abstellraum

Der praktische Abstellraum

Die vorhandene Einbauküche

Die vorhandene Einbauküche

Das Schlafzimmer

Das Schlafzimmer

Das Wohn-/Esszimmer

Das Wohn-/Esszimmer

Die Loggia

Die Loggia

Von der Loggia in das WZ

Von der Loggia in das WZ

Grundriss

Grundriss

Zufahrt zur Tiefgarage

Zufahrt zur Tiefgarage