Sabrina Dietrich Immobilien

Anspr. Sabrina Dietrich
02243 - 7073

Markt 4
53783 Eitorf

www.immo-dietrich.de

Drucken

Attraktives Mehrfamilienhaus in Jülich mit 6 Einheiten, 17 Zimmern, starke Rendite & Ausbaupotenzial

Zum Verkauf steht ein attraktives Mehrfamilienhaus in Jülich, ideal für Kapitalanleger, die Wert auf stabile Mieteinnahmen und Entwicklungspotenzial legen. Das 1960 erbaute Objekt verfügt über eine Gesamtwohnfläche von ca. 446 [...]

Hausansicht

Hausansicht

Objekt-Nr: 20049-3704

Preise

859.000,00 EUR

Courtage

3,57% inkl. MwSt.

Flächen

446 m²

242 m²

Ausstattung

6

11

17

Standard

1960

Gas

1960

Verbrauch

2035-03-24

2014

GAS

134.60

E

Etagenheizung

Ja

offen

gepflegt

Lagebeschreibung

Die Stadt Jülich zeichnet sich durch eine ausgezeichnete infrastrukturelle Anbindung sowie eine stetig wachsende Wohnraumnachfrage aus. Von besonderer Bedeutung ist die unmittelbare Nähe zum Forschungszentrum Jülich, einem der größten Forschungsstandorte Europas mit internationaler Strahlkraft. Der kontinuierliche Ausbau des Zentrums sorgt für eine hohe und nachhaltige Nachfrage nach Wohnraum, insbesondere bei Fach- und Führungskräften.

Das direkte Umfeld bietet eine sehr gute Nahversorgung mit Einkaufsmöglichkeiten, Schulen, Kitas und medizinischer Infrastruktur. Die Verkehrsanbindung ist sowohl über den öffentlichen Nahverkehr als auch über die Autobahnen A4 und A44 hervorragend gewährleistet, wodurch die Metropolregionen Köln, Düsseldorf und Aachen in kurzer Zeit erreichbar sind.

Für Kapitalanleger bedeutet diese Lage eine außergewöhnlich hohe Vermietungssicherheit sowie stabile Erträge – getragen durch die starke Nachfrage und die hervorragende wirtschaftliche Entwicklung des Standorts. Langfristig eröffnet sich zudem ein hohes Wertsteigerungspotenzial, gestützt durch die Bedeutung des Forschungszentrums und die dynamische Entwicklung der Region.

Objektbeschreibung

Zum Verkauf steht ein attraktives Mehrfamilienhaus in Jülich, ideal für Kapitalanleger, die Wert auf stabile Mieteinnahmen und Entwicklungspotenzial legen. Das 1960 erbaute Objekt verfügt über eine Gesamtwohnfläche von ca. 446 m² auf drei Ebenen und beherbergt aktuell sechs voll vermietete Wohneinheiten mit insgesamt 17 Zimmern. Die Jahresnettokaltmiete beträgt ca. 48.022 €, was einer Rendite von rund 5,6 % entspricht.

Das Gebäude bietet zahlreiche Vorteile für Investoren: Jede Wohneinheit verfügt über ein eigenes Kellerabteil, neue Etagenheizungen (2023–2024) sorgen für modernen Wohnkomfort, und das Haus ist vollständig unterkellert. Besonders interessant ist das Erweiterungspotenzial im Dachgeschoss, wo die Realisierung von zwei zusätzlichen Wohneinheiten möglich ist – ideal, um die Ertragskraft noch weiter zu steigern.

Die Lage in Jülich überzeugt durch eine hohe Vermietungssicherheit: In direkter Nähe zum renommierten Forschungszentrum Jülich ist eine konstante Nachfrage nach Wohnraum gesichert. Kurze Wege zu Schulen, Einkaufsmöglichkeiten und Ärzten sowie eine hervorragende Anbindung an Köln, Düsseldorf und Aachen runden das attraktive Standortprofil ab.

Für Investoren bietet diese Immobilie eine ideale Kombination aus laufenden Mieteinnahmen, langfristiger Wertsteigerung und zusätzlichem Ausbaupotenzial in einer wirtschaftlich starken Region.

Ausstattung

Gesamtwohnfläche: ca. 446 m² auf 3 Ebenen
Grundstücksgröße: ca. 242 m²
Baujahr: 1960
Einheiten: 6 Wohneinheiten, voll vermietet
Mieteinnahmen p.a.: ca. 48.022 €
Rendite: ca. 5,6 %
Erweiterungspotenzial: Dachgeschossausbau möglich (2 weitere Wohneinheiten realisierbar)

Wohnungsaufteilung
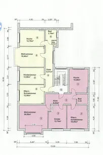
WE 1 – Erdgeschoss links: 86,20 m², 3 Zimmer
WE 2 – Erdgeschoss rechts: 56,05 m², 2 Zimmer
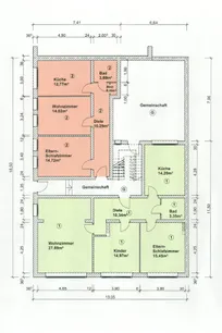
WE 3 – 1. Obergeschoss links: 79,50 m², 3 Zimmer
WE 4 – 1. Obergeschoss rechts: 70,65 m², 3 Zimmer
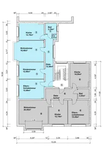
WE 5 – 2. Obergeschoss links: 73,75 m², 3 Zimmer
WE 6 – 2. Obergeschoss rechts: 79,50 m², 3 Zimmer

Ausstattungsmerkmale
Holzfenster aus dem Baujahr
Neue Etagenheizungen (2023–2024)
Voll unterkellert
Separates Kellerabteil für jede Wohneinheit

Hinweis: Aus Rücksicht auf die Privatsphäre der Mieter wurden im Exposé aktuell nur zwei der insgesamt sechs Wohneinheiten fotografiert.

Anlagen

Bilder

Innenhof

Innenhof

Treppenhaus

Treppenhaus

Eingangsbereich Whg. 1. OG

Eingangsbereich Whg. 1. OG

Kinderzimmer Whg. 1. OG

Kinderzimmer Whg. 1. OG

Schlafzimmer Whg. 1. OG

Schlafzimmer Whg. 1. OG

Wohnzimmer Whg. 1. OG

Wohnzimmer Whg. 1. OG

Küche Whg. 1. OG

Küche Whg. 1. OG

Badezimmer Whg. 1. OG

Badezimmer Whg. 1. OG

Eingangsbereich Whg. 2 OG

Eingangsbereich Whg. 2 OG

Flurbereich Whg. 2. OG

Flurbereich Whg. 2. OG

Küche Whg. 2 OG

Küche Whg. 2 OG

Badezimmer Whg. 2 OG

Badezimmer Whg. 2 OG

Wohnzimmer Whg. 2 OG

Wohnzimmer Whg. 2 OG

Schlafzimmer Whg. 2 OG

Schlafzimmer Whg. 2 OG

Optionaler Dachausbau 1

Optionaler Dachausbau 1

Optionaler Dachausbau 2

Optionaler Dachausbau 2

Erdgeschoss

Erdgeschoss

1. Obergeschoss

1. Obergeschoss

2. Obergeschoss

2. Obergeschoss

Dachgeschoss

Dachgeschoss

Lageplan

Lageplan