Sie sind hier:

Immobilienangebote - Expose

Ihr neues Zuhause: Einfamilienhaus mit Einliegerwohnung und Wohlfühlgarten

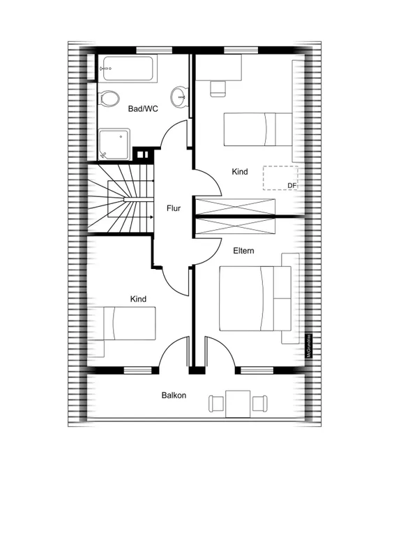
Diese gepflegte Doppelhaushälfte mit Einliegerwohnung, erbaut im Jahr 2001, besticht durch ihre großzügige Raumgestaltung, die lichtdurchflutete Wohnatmosphäre sowie die attraktive Hanglage mit weitem Ausblick. Hauptwohnbereich (ca. 133 m² Wohnfläche) Der Hauptteil des [...]

 
AußenansichtDieleEssbereichKücheWohnzimmerBalkon EGArbeitszimmerBadezimmerBadezimmerSchlafzimmerAnkleidezimmerBalkon 1.OGEinliegerwohnung GartenGartenEGDGUG

Anfrage senden

Kontakt

Sabrina Dietrich Immobilien

Markt 4
53783 Eitorf
Anfahrt

Bonner Str. 30
53773 Hennef

Telefon 0 22 43 / 70 73
Telefon 0 22 42 / 8 54 63
Telefax 0 22 43 / 84 11 02
Kontakt per Mail

 

Sabrina Dietrich Immobilien
Markt 4
53783 Eitorf
Telefon 0 22 43 / 70 73 - Telefax 0 22 43 / 84 11 02
info@immo-dietrich.de