Sie sind hier:

Immobilienangebote - Expose

Helle Dachgeschosswohnung mit Wohlfühlfaktor – 3 Zimmer & Balkon in ruhiger Lage

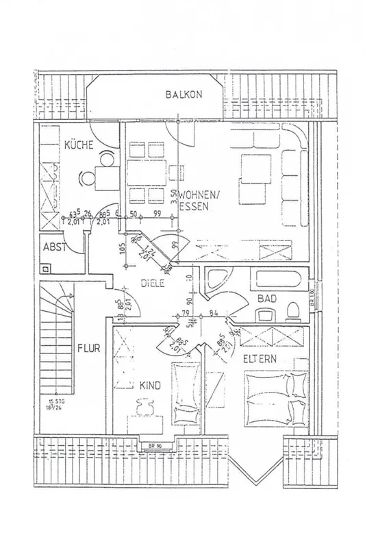
Diese großzügig geschnittene Dachgeschosswohnung vereint Licht, Raum und Funktionalität auf rund 62 m² – ideal für Paare, kleine Familien oder Kapitalanleger, die nach einer gepflegten und gut durchdachten Immobilie suchen. Zwei Schlafzimmer [...]

 
Hausansicht2 DieleBadezimmerDachgeschossLageplan

Anfrage senden

Kontakt

Sabrina Dietrich Immobilien

Markt 4
53783 Eitorf
Anfahrt

Bonner Str. 30
53773 Hennef

Telefon 0 22 43 / 70 73
Telefon 0 22 42 / 8 54 63
Telefax 0 22 43 / 84 11 02
Kontakt per Mail

 

Sabrina Dietrich Immobilien
Markt 4
53783 Eitorf
Telefon 0 22 43 / 70 73 - Telefax 0 22 43 / 84 11 02
info@immo-dietrich.de