Sie sind hier:

Immobilienangebote - Expose

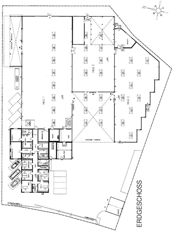
Hallenfläche mit Verwaltungsgebäude

Das Objekt wurde auf einem 4.721 m² großen Erbpachtgrundstück erbaut. Große Rolltore ermöglichen das bequeme Bestücken der Lager- und Produktionsflächen, welche sich über 1.868 m² erstreckt. Die Fläche ist aufgeteilt [...]

 
LuftbildBürogebäudeGarage/HofansichtGroße HalleGroße HalleMittlere HalleÜberdachte AnlieferungÜberdachte AnlieferungAußenlagerElektroverteilung HalleHeizlüfter HalleHeizungsverteilerErdgeschossObergeschossWasserverteilungHeizungsanlageHeizungsanlageHalle leerMittlere Halle leerRechte Halle leerBüroBüroBüroSanitärräume

Anfrage senden

Kontakt

Sabrina Dietrich Immobilien

Markt 4
53783 Eitorf
Anfahrt

Bonner Str. 30
53773 Hennef

Telefon 0 22 43 / 70 73
Telefon 0 22 42 / 8 54 63
Telefax 0 22 43 / 84 11 02
Kontakt per Mail

 

Sabrina Dietrich Immobilien
Markt 4
53783 Eitorf
Telefon 0 22 43 / 70 73 - Telefax 0 22 43 / 84 11 02
info@immo-dietrich.de